pre-logo
WHICH GARDEN HOUSE STYLE REFLECTS YOUR SOUL?
Each garden house style has its own unique charm, reflecting the aesthetic taste and inner world of its owner. From the elegance of Japanese style, the free-spirited nature of Medterranean design, to the rustic and cozy beauty of the countryside – so, which style truly reflects your soul?  Do you…
Read More
FORECAST OF GARDEN VILLA CONSTRUCTION COSTS IN 2025
It is no exaggeration to say that garden villas are increasingly attracting attention due to the fresh, nature-blended living space they offer. But how can you accurately calculate the construction costs of a villa, especially in the context of price fluctuations in 2025? Below are the key factors you need…
Read More
POPULAR GARDEN HOUSE DECORATION TRENDS IN 2025
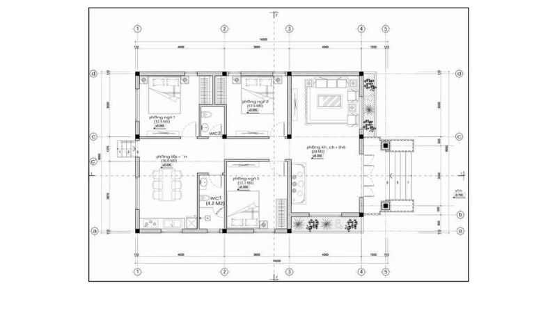
When it comes to architectural drawings in general and garden villa drawings in particular, they serve as the fundamental foundation for executing and shaping a construction project. From the very first strokes, the drawing defines the entire concept and inspiration, acting as a bridge between the designer’s dedication and the…
Read More